立川のワンルーム賃貸アパート ★築浅1R!インターネット無料!★!|株式会社ウィルホーム

立川のワンルーム賃貸アパート!

 立川のワンルーム賃貸アパート 

  • 7.3万円 / 共益費:3,000円 / 管理費:-
  • ワンルーム(洋室7.1畳) 19.78m2
  • 敷金0ヶ月 / 礼金0ヶ月 / 保証金- / 敷引-
【建物外観】 
  • 【建物外観】 
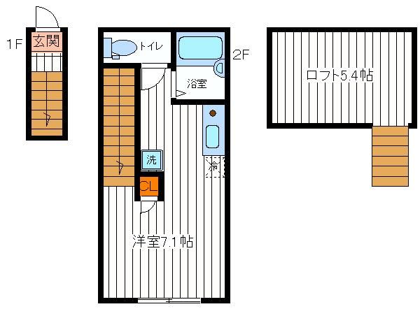
  • 【間取】 
  • 【キッチン】 
  • 【居間・リビング】 
  • 【バス】 
  • 【寝室】 
  • 【玄関】 
  • 【収納】 
  • 【トイレ】 
  • 【セキュリティ】 
  • 【その他】 
  • 【その他設備】 
  • 【エントランス】 
  • 【その他共有部分】 
  • 【周辺】 キッチンコート立川店 193m

【についてスタッフからのイチオシポイント!】

★築浅1R!インターネット無料!★◆立川、住環境の良い柴崎町!宅配ボックスなど設備も充実!◆
は東京都立川市柴崎町4丁目【JR中央線 立川駅徒歩10分】にあるワンルーム賃貸アパートです。
2021年6月築の2階建てのアパートで、お部屋は2階建ての2階部分です。
物件の広さは19.78m2で人気のワンルームです。
※お部屋のもっと詳しい内容や入居時期、諸条件のご相談など、ホームページには掲載が間に合わず載せきれていない情報もございます。
気になることが御座いましたらお気軽にメールにてお問い合わせください。
042-521-6330
株式会社ウィルホーム
お問い合わせNO:RHS-32792021

物件基本情報

所在地 東京都立川市柴崎町4丁目   周辺MAP
交通 JR中央線 「立川駅」 徒歩10分
多摩都市モノレール 「柴崎体育館駅」 徒歩4分
多摩都市モノレール 「立川南駅」 徒歩10分
種別 / 構造 アパート / 木造 主要採光面 所在階 / 階数 2階 / 2階
築年月 2021年6月  間取り ワンルーム( 洋室7.1畳 ) 専有面積 19.78m2

物件詳細情報

損保 要 20,000円/2年  更新料 あり 新賃料 1ヶ月 鍵交換代 22,000円
駐車場 近隣駐車場   契約期間
借家区分
2年 -
現況 空き予定 入居可能日 2026年6月上旬 取引態様 媒介
保証人代行会社 エポスカード 初回保証料 総賃料の60%
年間保証料 1万円
月額引落手数料 賃料総額の1%
仲介手数料 バイク置き場
他初期費用 室内消毒料19,800円 事務手数料5,500円

設備詳細情報

キッチン
  • IHクッキングヒーター
  • 1口コンロ
バス・トイレ
  • 給湯
  • バストイレ別
  • シャワー
  • 浴室乾燥機
  • 洗面台
  • 温水洗浄便座
  • トイレ
  • 室内洗濯置
  • 室内洗濯機置き場
住空間
  • 最上階
  • フローリング
  • 全居室フローリング
  • ロフト
  • エアコン
設備・サービス
  • 収納
  • クロゼット
  • シューズボックス
  • TVインターホン
  • 宅配ボックス
  • 敷地内ごみ置
  • 光ファイバー
  • ネット使用料不要
特 徴
  • 始発駅
  • 2沿線利用可
  • 3駅以上利用可
  • 駅徒歩5分以内
条件・その他  ガス:都市 / 水道:公営 / 排水:下水 / 保証人代行:必加入
コメント ★築浅1R!インターネット無料!★◆立川、住環境の良い柴崎町!宅配ボックスなど設備も充実!◆
備 考 -
情報更新日:2026年04月16日 次回更新予定日:2026年04月30日
※各種情報と差異がある場合は現況優先となります
※物件情報の学区情報について
当サイト物件情報に記載されております通学区域(学区)情報は、国土数値情報ダウンロードサービスが提供する小学校区データ【2016年度】及び中学校区データ【2016年度】を元に加工したものですので、記載情報が現在の学区域と異なる場合がございます。国土数値情報ダウンロードサービスのWEBサイト上で記述通り、データは必ずしも正確とは言えません。また、通学区域(学区)は毎年見直しの対象となりますので、そちらを踏まえ学区情報は参考としてご活用下さい。

近隣スポット情報

  • 【買う】スーパー
    キッチンコート立川店(193m)
  • 【買う】ショッピングセンター
    ビックカメラ立川店(1185m)
  • 【買う】ショッピングセンター
    伊勢丹(1096m)
  • 【買う】ショッピングセンター
    ルミネ(1090m)
  • 【買う】ショッピングセンター
    ヤマダ電機(1073m)
  • 【買う】ショッピングセンター
    エキュート立川(872m)

こちらの物件の空室状況

部屋番号 賃料 共益費 / 管理費 間取り 専有面積 敷金 礼金 お気に入り 物件詳細
202 7.3万円 3,000円 / - ワンルーム 19.78m2 0ヶ月 0ヶ月 お気に入り 物件詳細
042-521-6330
株式会社ウィルホーム
お問い合わせNO:RHS-32792021

この物件に似た物件をチェック!

  • 賃貸アパート 8.1万円

    立川駅 徒歩17分

    1LDK(29.84u)

    ★オートロック付き1LDKアパート!インターネット無料!★

  • 賃貸アパート 6.7万円

    立川駅 徒歩10分

    1K(16.12u)

    ★築浅1Kアパート!インターネット無料!★

  • 賃貸アパート 7.7万円

    立川駅 徒歩25分

    1K(34.27u)

    ★ウォークインクローゼット付き!2面採光、角部屋!★

  • 賃貸アパート 6.5万円

    立川駅 徒歩11分

    1K(23.18u)

    ★人気の独立洗面台、2口ガスキッチン!★


閲覧した物件の履歴

閲覧した物件の一覧を見る

最近検索した条件一覧



気になったら今すぐ!カンタンお問合せ



お問合せ内容必須
【備考欄】
希望条件・来店希望日・その他質問がございましたらご記入ください。
お客様情報
お名前必須
連絡先必須


※ご記入いただいたメールアドレス宛てに、お問合せ内容の確認メールをお送りいたします。
※Yahoo!メールなどのフリーメールをご利用の場合、迷惑メールフォルダに入る場合があります。
 迷惑メールのフォルダ・設定等をご確認下さい。
メールアドレス
電話番号
FAX(任意)



※ご入力いただいたお客さまの個人情報は、「個人情報の取扱いについて」に基づき適正に取り扱います。
必ずお読みになり、同意の上お問い合わせください。

 


▲ページのTOPへ戻る



お問合せはこちら

株式会社ウィルホーム 042-521-6330

Station

ご希望の駅から物件を探す

「マッチングメール」で
はじめる、部屋探し。

「マッチングメール」ではじめる、部屋探し。

希望条件にマッチした物件を自動配信。費用は一切かかりません、安心してご利用ください。

無料登録はこちら

For Owner

賃貸管理のご相談について

空室改善・賃貸管理は
提案力・仲介実績が豊富な
ウィルホームにお任せください。

詳しくはこちら

Shop Info

当店について

tel.042-521-6330

ウィルホームでは立川駅の賃貸物件を数多くご用意しております。人気の新築・築浅物件からペット可・デザイナーズ・一戸建てなどシングルからファミリータイプまで幅広くお取り揃えしておりますので、どうぞお気軽にご相談ください。

立川でのお部屋探しはウィルホームへ

〒190-0023
東京都立川市柴崎町2-1-5 立川龍生堂ビル4階
営業時間 10:00〜18:30
定休日 毎週水曜日
(1月〜3月までは無休で営業しております)